Obrazek ładowania

0

Komercja Sprzedaż

Białystok

Nowe Miasto

572,50m2,

Cena: 4 700 000 PLN

8 216,78 PLN/m2

Rodzaj budynku

Powierzchnia budynku

572,50 m2

Województwo

Podlaskie

Gmina

białystok

Witryna wystawowa

Tak

Ogrzewanie

Tak

Powierzchnia działki

1500 m2

Standard

do odświeżenia

Rok budowy

2000

Parking

Tak

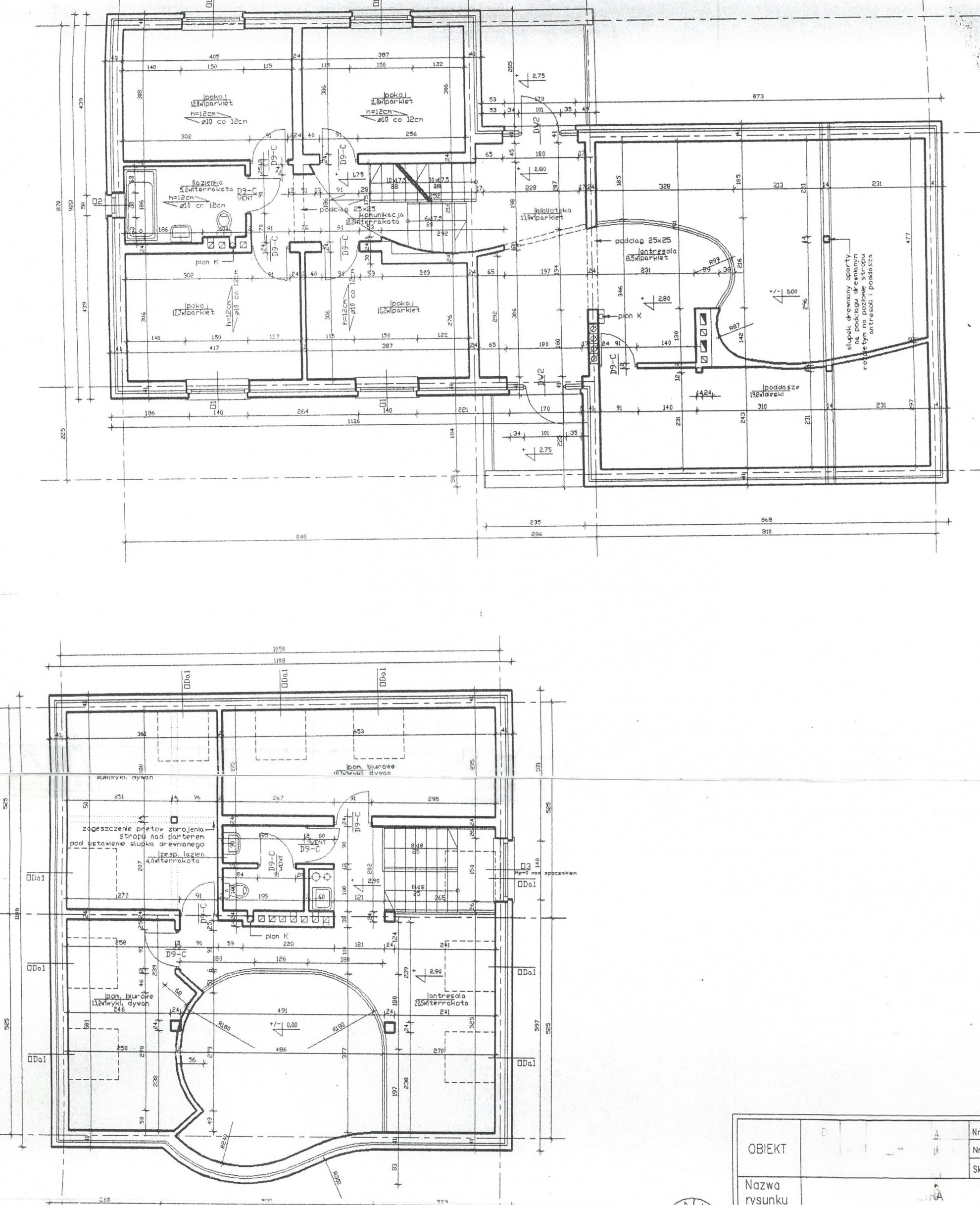
Do sprzedaży budynek handlowo-usługowo-mieszkalny przy głównej ulicy w Białymstoku o powierzchni użytkowej  572,50m2 składający się z dwóch brył z czego jedna położona najbliżej ulicy i stanowi budynek  handlowo-usługowy o powierzchni użytkowej 284m2. Budynek usługowy połączony jest z domem mieszkalnym o powierzchni użytkowej 288,50m2 zadaszonym przejściem w podpiwniczeniu w którym znajdują się pomieszczenia pomocnicze (magazynowe) budynku handlowo-usługowego. Równolegle do tego przejścia biegnie zjazd do garażu znajdującego się pod częścią dzienną budynku mieszkalnego. Zjazd ten obsługuje również dojazd do części magazynowej budynku handlowo-usługowego.

Budynek handlowo-usługowy jest budynkiem parterowym całkowicie podpiwniczonym z poddaszem użytkowym. W piwnicy zlokalizowane są magazyny oraz sanitariaty dla pracowników z szatnią. Na parterze znajdują się 4 pokoje z przeznaczeniem handlowo-usługowo-biurowym, WC. Na piętrze znajdują się pomieszczenia biurowe, WC, oraz antresola spełniająca funkcję pomieszczenia socjalnego.

Budynek mieszkalny składa się z części dziennej i nocnej. Część dzienna to budynek parterowy całkowicie podpiwniczony z poddaszem, które stanowi w większej części antresola wykorzystywana jako biblioteka oraz stryszek dostępny z antresoli. W parterze tej części znajduje się zespół wejściowy do budynku mieszkalnego, hall, kuchnia, spiżarnia, kuchnia połączona z jadalnią i salonem. W piwnicy garaż na dwa samochody, pralnia z suszarnią, kotłownia ze składem opału oraz pomieszczenie gospodarcze. Piwnica tej części połączona jest łącznikiem z piwnicą budynku handlowo-usługowego.

Część nocna to budynek dwukondygnacyjny niepodpiwniczony z poddaszem użytkowym przesunięty względom części dziennej o pół kondygnacji. Na parterze gabinet, sypialnia z garderobą, kuchnia. Na piętrze 4 sypialnie, łazienka. Poddasze to otwarta przestrzeń. 

Budynki murowane - gazobeton 24cm, styropian 8cm, gazobeton 12cm. Ogrzewanie olejowe i na paliwo stałe. Możliwość ogrzewania gazowego. 

Dach pokryty dachówką ceramiczną, okna PCV. 

Działka ogrodzona, zagospodarowana, parking przed budynkiem klientom. Możliwość powiększenia parkingu kosztem ogrodu. 

Cena: 4.700.000 PLN do negocjacji

POLECAMY I ZAPRASZAMY NA PREZENTACJĘ.
Tel. 884 844 511
Mail: sekretariat@werelfox.pl


Gwarancja bezpieczeństwa - nasze transakcje są ubezpieczone; numer licencji pośrednika w obrocie nieruchomościami 4277.
Podane dane mają charakter wyłącznie informacyjny i winny być traktowane jako zaproszenie do zawarcia umowy. Informacja nie stanowi oferty w rozumieniu art.66 KC oraz innych właściwych.
Informacje umieszczone w ofertach przekazywane są przez właścicieli nieruchomości i mogą ulegać zmianom. Dokładamy wszelkich starań, aby wszystkie oferty były aktualne i odpowiadały stanowi rzeczywistemu

 

Oferta nr 3912

Opiekun Oferty

Beata Carewicz

884 844 511

sekretariat@werelfox.pl

Zapytaj o nieruchomość